Un espace partagé de travail et d'activités, polyvalent et attractif, au coeur du village
Depuis plusieurs années, nous sommes fréquemment sollicités par des professionnels en recherche de petits locaux pour exercer leur activité. La situation géographique de notre commune, idéalement placée au carrefour de deux vallées, en lisière de l’arrière-pays Dieulefitois, attire les regards et les perspectives d’installation.
Par ailleurs, la mairie manque d’espace de travail et de réunion, tout comme les associations qui ne disposent que de la Salle des Fêtes, souvent trop grande et difficile à chauffer.
Avec la reprise de la boulangerie, le 1er étage libéré nous a conduit à imaginer de nouveaux usages. Le projet de création d’un espace partagé de travail et d’activités a vu le jour, aussitôt baptisé la Fabrego. Traduction provençale de la Forge, comme l’impasse qui porte son nom, ce terme évoque aussi la Fabrique, lieu propice au travail de la matière et à la naissance des idées.

A partir de personnes identifiées ou de sollicitations passées, nous avons déjà listé :
- Bibliothèque, résidence d’écrivain
- Massage, auto-entreprise de tourisme
- Séminaires » du service social, Lien 26
- "Comptoir de la transition » par les Centrales Villageoises de La Lance
- Télétravail individuel
- Profession médicale ou paramédicale (médecin, kinésithérapeute, ostéopathe…)
Après une phase d’étude et d’esquisse accompagnée par le CAUE (Conseil en Architecture Urbanisme et Environnement) de la Drôme au printemps 2021, l’opération a été confiée au cabinet d’architectes PEYSSON-VETORELLO durant l’été.
Un Avant-projet sommaire a été validé en septembre pour déposer les demandes de subvention, au Département, à l’Etat, à la Région, à l’Europe. Le plan de financement est pour ainsi dire bouclé, avec 80% de subventions accordées. Le projet a même été applaudi par le comité LEADER (fonds européens) avec une note de 17/20 lors de sa présentation le 8 décembre dernier.
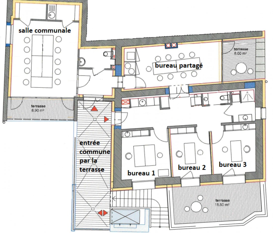
Des locaux composés :
- d'une salle communale
- Réunions des associations : l’Echo de La Lance, Jours de fêtes, les Amis du Temple, la Route du Lez, etc.
- Ateliers de l’association peinture
- Deuxième lieu de travail pour les élus
- d'un espace partagé de travail
- 3 bureaux indépendants pour 1 à 2 personnes, loués à la journée, à la semaine, au mois ou à l’année
- 1 grand bureau partagé loué à la journée.
Et pour la gestion du lieu :
- Une « conciergerie » partagée
en différents créneaux assurés par :
- Un professionnel, en échange d’un avantage sur le loyer (il existe des exemples de ce type dans d’autres tiers-lieux)
- Le Lien 26 ou le Collectif Citoyen
- Un employé de Territoire Zéro Chômeur de Longue Durée
- Quelques créneaux assurés par des élus
La conciergerie pourrait aussi servir de point livraison colis
L’Avant-Projet, au chiffrage très élevé (650 000€ HT), va être retravaillé et revu à la baisse, pour le ramener à un coût prévisionnel de 520 000€ HT, sans en changer l’esprit mais en allant vers des choix architecturaux plus modestes. Il mérite déjà quelques explications :
- Réhabilitation de locaux anciens, contraints, morcelés, à l’étage, sur plusieurs niveaux de sols, et abritant différentes activités… cela coûte forcément plus cher qu’une cons-truction neuve. Les règles d’urbanisme actuelles visent néanmoins à limiter toute nou-velle emprise du béton sur le terrain naturel et, que de ce côté-là, le projet répond par-faitement au double objectif de non-artificialisation des sols et de valorisation d’un pa-trimoine communal existant.
- Réversibilité des locaux : dans l’hypothèse où l’espace de travail redevienne un jour le logement d’un boulanger, nous anticipons quelques surcoûts (séparation des réseaux et câblages de la salle communale notamment)
- Isolation thermique par l’extérieur de tout le bâtiment : identifié comme une véritable passoire thermique depuis de nombreuses années, le bâtiment doit être isolé. Pour un meilleur résultat avec moins de contraintes, c’est une isolation des façades qui est envi-sagée. Chantier étudié et chiffré, mais non réalisé dans le mandat précédent, il se rat-tache ici à la globalité du projet Fabrego
- Accessibilité : la création d’un ascenseur et la mise à niveau de quasi tous les planchers est un choix assumé de rendre l’étage accessible à tous, et à toutes les activités.
- Toit terrasse : La reprise de la partie magasin de la boulangerie avec réalisation d’un toit-terrasse, option facultative prônée par les architectes dans objectif d’harmonisation globale de la façade, devrait être abandonnée par souci d’économie.
- Diagnostics et désamiantage : colle des sols, gaine de cheminée, etc…, ces travaux obli-gatoirement réalisés par des entreprises agréées, coûtent cher.
- Provision pour imprévus : pour tenir compte du contexte actuel de pénurie et de forte inflation des matériaux, cette provision a été doublée
- Honoraires des architectes : calculés sur la base du projet le plus élevé, ils seront revus à la baisse en cas de conjoncture économique stable, d’absence d’imprévus ou de non-réalisation de certaines options.
En parallèle des plans et travaux, il nous semble important d’associer les futurs usagers (habitants et extérieurs) à l’émergence de La Fabrego : Connaître votre perception d’un tel lieu, recueillir vos propositions sur ses usages et sa gestion.
N'hésitez pas à répondre à un questionnaire rapide pour donner votre avis, c'est anonyme et cela prend moins de 3 minutes : https://forms.gle/mpY3y9ZLMrFGxNpJ6
COMMENTAIRES